Skip to main content

Geräumiger und außergewöhnlicher Klassiker.

Das Haus der Familie Ulrich ist die optimale Lösung für großen Platzbedarf auf wenig Baufläche, denn auf rund 10 x 11 m erstreckt sich hier ein absolutes Raumwunder, das sich später für komfortables Wohnen auf einer Ebene eignet.

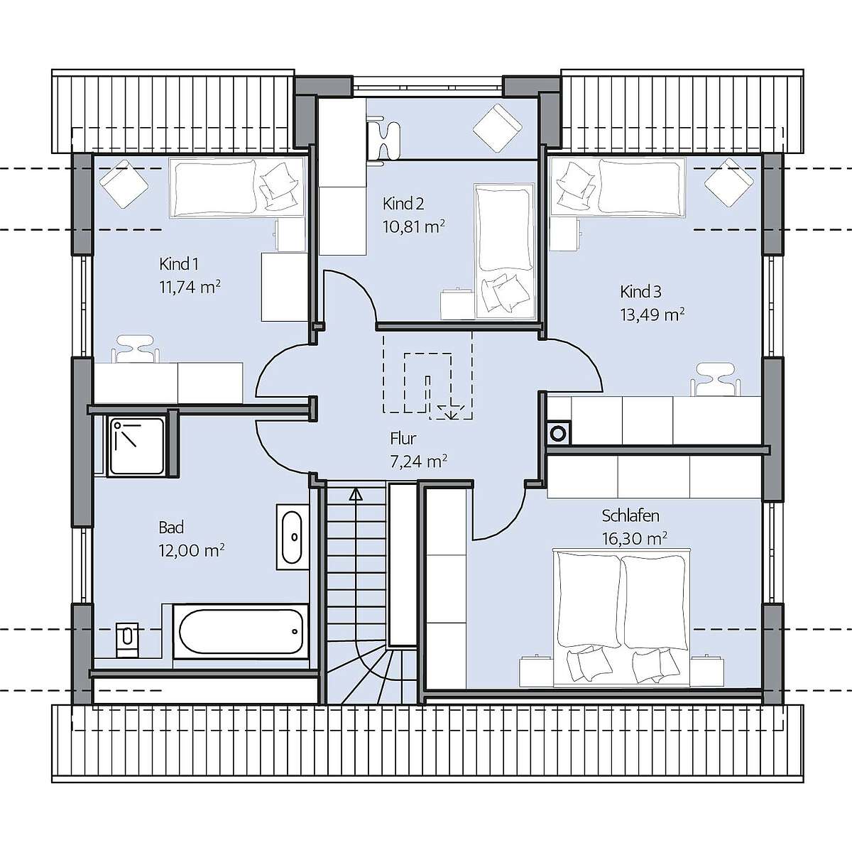
Mit seiner geradlinigen Gestaltung, dem steilen Hausgiebel mit „Uhlenflug“ und der eleganten Farbgebung wurde das klassische Satteldachhaus in ein individuelles Unikat verwandelt. Auch der Dacherker, der sich über zwei Stockwerke erstreckt, bricht mit dem traditionellen Bild und vermittelt einen Eindruck der Größe, die das Hausinnere bietet. Mittelpunkt des Hauses ist der großzügig offene Bereich im Erdgeschoss, der Küche mit durchdacht angeschlossenem Hauswirtschaftsraum, Essecke und Wohnzimmer umschließt. Drei zweiflüglige Türen führen hinaus auf die Terrasse. An die Küche schließt sich durchdacht der Hauswirtschaftsraum an. Zusätzlich auf dieser Ebene befinden sich ein Arbeits- oder Gästezimmer sowie ein Gäste-WC mit Dusche. Im Dachgeschoss gibt es drei Kinderzimmer, das Elternschlafzimmer und das Familienbad. Für genügend Platz und Kopffreiheit in allen Räumen sorgt die Dachneigung von 48°. Und sollte es trotzdem noch eng werden, so ist der Spitzboden noch ausbaufähig.

Jetzt Beratungstermin vereinbaren

Mit dem Versenden dieses Formulars willigen Sie der Verarbeitung Ihrer Daten ein, stimmen der Kontaktaufnahme durch die Hermann Reinhard GmbH & Co. KG zu. Diese Einwilligung können Sie jederzeit per E-Mail an info@reinhard-bau.de widerrufen. Detaillierte Informationen zum Umgang mit Ihren Nutzerdaten finden Sie in unserer Datenschutzerklärung.

Mit * markierte Felder sind Pflichtangaben.

Grundrisse

Daten + Fakten

Alle dargestellten Flächen und Flächenberechnungen zu Wohnflächen wurden gemäß der Verordnung zur Berechnung der Wohnfläche (Wohnflächenverordnung - Wo FlV) vom 25. November 2003 (BgBl. I S. 2346) ermittelt.

Geschoss Wohnfläche
EG 77,3 m²
DG 64,1 m²
SPB 17,0 m²
Gesamt 158,4 m²

Wir beraten Sie gerne. 

Mit Zeit, konkreten Planungsideen sowie den Blick auf Ihre Wünsche. Und natürlich unverbindlich wie kostenfrei.

Beratungsgespräch  Anrufen: 06226 55224  Hauskatalog  Richtpreisbroschüre